Confiez vos projets résidentiels
à un technologue qualifié
Appelez-nous
Fermer le
menu
Ouvrir le
menu
Accueil
Services
Démarche
Plans
Rénovation
Maison neuve
Réalisations
Nous joindre
514 266-7043
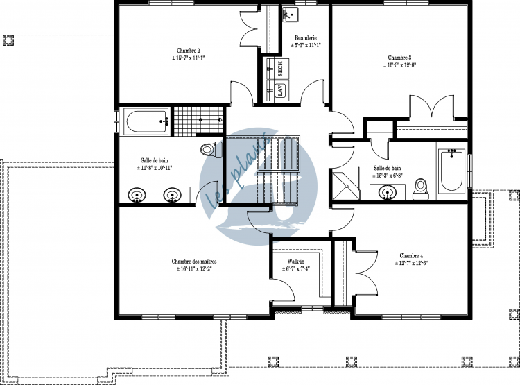
Plan 09004
Cottage - 2754 pi
2
Retour aux plans
Façade
Rez-de-chaussée
Étage
Réalisation
Retour aux plans
Retour en haut de page